Вид с заднего двора
Вид с фасада
* В чистовую отделку входит:
- сантехника
- стяжка пола
- оштукатуривание стен
- шпаклевание стен
- электрика
- отопление (котёл + радиаторы)
Визуализация участков
План 1 этажа
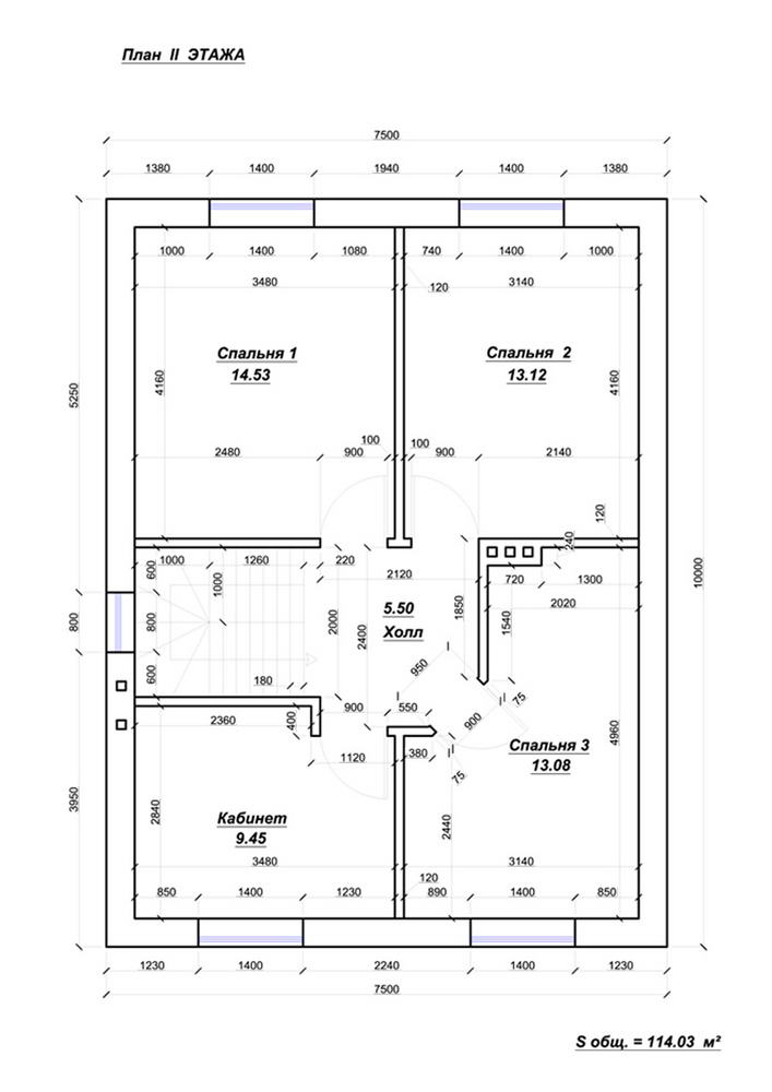
План 2 этажа
План участка
Участок 1240 м2
Заливка фундамента
Кладка цоколя
Выравнивание земли под заливку
Заливка монолитной плиты
Заливка монолитной плиты
Кладка 1-го этажа
Кладка 1-го этажа
Кладка 1-го этажа
8 июня 2011 г.
20 июля 2011 г.
5 сентября 2011 г.
5 сентября 2011 г.
5 сентября 2011 г.
5 сентября 2011 г.